Northside Summit Ranch

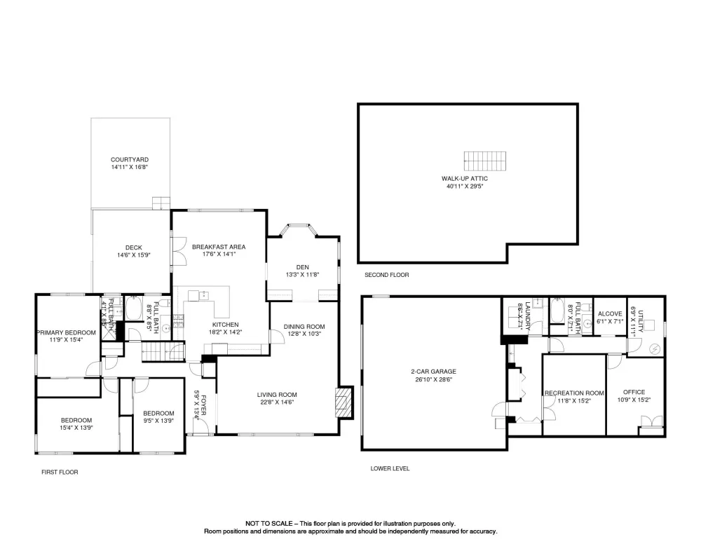
Wonderful Ranch-style home located on Summit's desirable Northside in the sought-after Lincoln Elementary School District. Move-in ready and filled with natural light, the home features an open floor plan with a spacious Living Room that flows seamlessly into the Dining Room ideal for everyday living and entertaining.The eat-in Kitchen opens to a huge breakfast room with vaulted ceiling, skylight and a striking Palladian window overlooking private property. The adjacent den completes the main living area. The first floor offers three generously sized bedrooms with ample closet space and two full bathrooms. The finished lower level provides exceptional flexibility with a Recreation Room, full bath, reading nook, and office. Additional highlights include an oversized two-car garage with abundant storage, plus walk-up attic storage. Set on a beautiful, half-acre lot, this home offers flexible living for many different lifestyles. Fireplace, chimney, flues to be purchased in as-is condition. Gas FP in LR as-is.